Dorfen – Ruprechtsberg
Vom Flur aus haben Sie Zugang zu allen Räumen: 3 Kinderzimmer, Schlafzimmer, Wohnen/Küche, Bad, Gäste-Bad und Abstellraum.
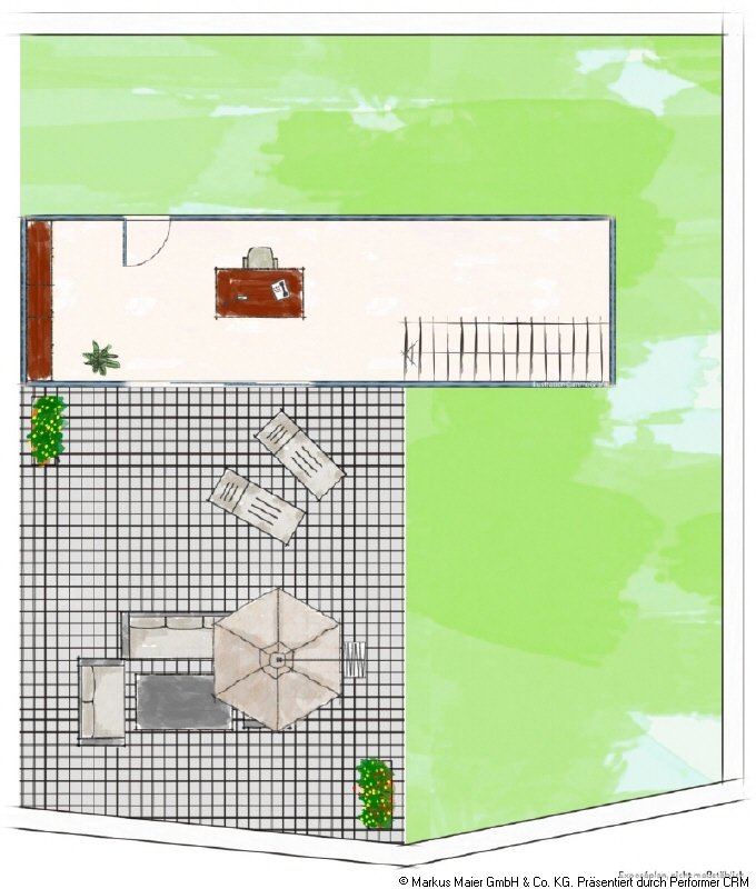
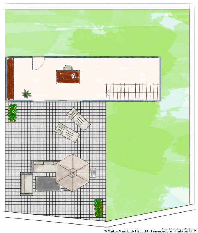
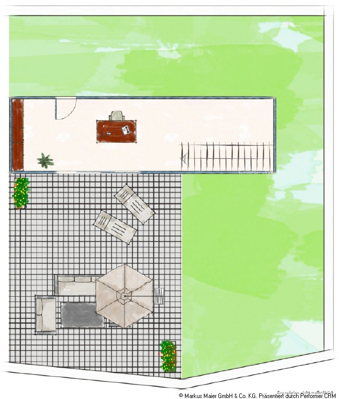
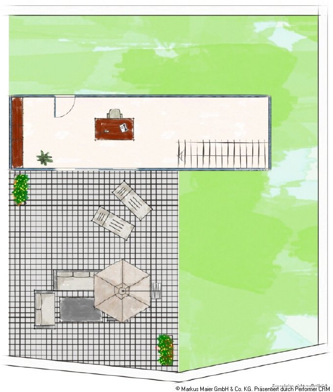
Über eine Treppe in der Wohnung erreichen Sie ganz bequem Ihren Dachgarten, von dem aus Sie eine schöne Sicht über Dorfen haben.
Ein separates Kellerabteil und zwei eigene Stellplätze in der Tiefgarage (zzgl. je 25.000 €) runden das Angebot perfekt ab.
2. Fußbodenheizung in der gesamten Wohnung mit Raumthermostaten.
3. Bad raumhoch gefliest.
4. Bodenbelag nach Wahl in allen Wohn-, Ess- und Schlafräumen. Leicht zu pflegen und schön anzusehen.
5. Besseres Raumklima durch feuchtegesteuerte Wohnraumlüftung.
6. Dreh-Kippfenster aus Kunststoff. Widerstehen allen Wetterbedingungen und sind mit einer hervorragend dämmenden 3-fach-Verglasung ausgestattet.
7. Rollläden an allen Fenstern mit Elektroantrieb, wo dies technisch möglich ist.
8. Aufzug vom Keller bis zu jeder Wohnung.
9. Balkon, Dachterrasse oder Gartenanteil mit Terrasse
10. Kellerabteil für die geheimen Schätze
11. Anschluss für Waschmaschine und Trockner im Waschraum

Perfekt für junge Familien sind Kindergarten und Schulzentrum nur einen Steinwurf entfernt.
Auch ärztliche Versorgung ist zu Fuß erreichbar im nahe gelegenen Ärzte- u. Krankenhaus.
Auf verschiedenen Wegen gelangen Sie in wenigen Gehminuten zur Innenstadt von Dorfen.
Energieeffizienzklasse: B
Baujahr: 2026
Heizungsart: Fernwärme
Befeuerung/Energieträger: Fernwärme
Energiekennwert: 51,0 kWh/(m²*a)
Die Stadt Dorfen liegt mit seinen ca. 13.600 Einwohnern idyllisch zwischen Wiesen und Wäldern, Hügeln und Tälern im Voralpenland. Die reizvolle Landschaft des Isentals bietet einen hohen Naherholungs- und Freizeitwert. Gleichzeitig kann die Stadt Dorfen ihren Bürgern eine gute infrastrukturelle Ausstattung bieten. Zahlreiche Einkaufsmöglichkeiten und Einrichtungen der ärztlichen Versorgung sind im Stadtgebiet verfügbar und auch leicht ohne Auto zu erreichen. Verschiedene Freizeitaktivitäten, wie z.B. Freibad, Eisstadion, Fitnessstudio, Tennis- und Sportplätze, runden das Alltagsleben ab. Als Schulstadt verfügt Dorfen sowohl über eine Grundschule, als auch über weiterführende Schulen wie Hauptschule und Gymnasium. Die nächste Realschule liegt nicht weit entfernten in Taufkirchen/Vils. Die direkte Lage Dorfens an der Bahnlinie München-Mühldorf verspricht eine gute Bahnanbindung. Mit dem Zug ist die Landeshauptstadt München in etwa 35 Minuten zu erreichen und das ganz ohne Parkplatzprobleme. Diesen Vorteil nutzen bereits zahlreiche Dorfener Pendler. Des Weiteren ermöglicht die A94 das Erreichen Münchens Stadtmitte in nur 35 Minuten. Mühldorf ist in nur 25 Autominuten zu erreichen.
Exklusive Dachgeschosswohnung mit Blick über Dorfen *KfW-Förderung*

Wohnungstyp
Etagenwohnung
Wohnfläche
165,08 m2
Zimmer
5
Kosten
Kaufpreis
1 195 350 €
Bausubstanz & Energieausweis
Baujahr
2026
Objektzustand
Erstbezug
Heizungsart
Fernwärme
Wesentliche Energieträger
Fernwärme
Energie-Ausweis
Endenergiebedarf
51,0 kWh/(m2*a)
Energieeffizienzklasse
B
0
25
50
75
100
125
150
175
200
225
>250
Objektbeschreibung
Die moderne 5-Zimmer Neubauwohnung entsteht im 3. Obergeschoss eines Mehrfamilienhauses mit 7 Parteien.Vom Flur aus haben Sie Zugang zu allen Räumen: 3 Kinderzimmer, Schlafzimmer, Wohnen/Küche, Bad, Gäste-Bad und Abstellraum.
Über eine Treppe in der Wohnung erreichen Sie ganz bequem Ihren Dachgarten, von dem aus Sie eine schöne Sicht über Dorfen haben.
Ein separates Kellerabteil und zwei eigene Stellplätze in der Tiefgarage (zzgl. je 25.000 €) runden das Angebot perfekt ab.
Ausstattung
1. Wohngesunde Ziegelbauweise, Massiv bauen ... besser leben.2. Fußbodenheizung in der gesamten Wohnung mit Raumthermostaten.
3. Bad raumhoch gefliest.
4. Bodenbelag nach Wahl in allen Wohn-, Ess- und Schlafräumen. Leicht zu pflegen und schön anzusehen.
5. Besseres Raumklima durch feuchtegesteuerte Wohnraumlüftung.
6. Dreh-Kippfenster aus Kunststoff. Widerstehen allen Wetterbedingungen und sind mit einer hervorragend dämmenden 3-fach-Verglasung ausgestattet.
7. Rollläden an allen Fenstern mit Elektroantrieb, wo dies technisch möglich ist.
8. Aufzug vom Keller bis zu jeder Wohnung.
9. Balkon, Dachterrasse oder Gartenanteil mit Terrasse
10. Kellerabteil für die geheimen Schätze
11. Anschluss für Waschmaschine und Trockner im Waschraum
Grundriss


Lage
Das Neubauprojekt besteht aus 6 Gebäudeteilen mit insgesamt 60 Eigentumswohnungen und entsteht am Ruprechtsberg in Dorfen, auf dem Gelände der ehemaligen "Akademie Handel".Perfekt für junge Familien sind Kindergarten und Schulzentrum nur einen Steinwurf entfernt.
Auch ärztliche Versorgung ist zu Fuß erreichbar im nahe gelegenen Ärzte- u. Krankenhaus.
Auf verschiedenen Wegen gelangen Sie in wenigen Gehminuten zur Innenstadt von Dorfen.
Sonstige Angaben
Energieausweistyp: BedarfsausweisEnergieeffizienzklasse: B
Baujahr: 2026
Heizungsart: Fernwärme
Befeuerung/Energieträger: Fernwärme
Energiekennwert: 51,0 kWh/(m²*a)
Die Stadt Dorfen liegt mit seinen ca. 13.600 Einwohnern idyllisch zwischen Wiesen und Wäldern, Hügeln und Tälern im Voralpenland. Die reizvolle Landschaft des Isentals bietet einen hohen Naherholungs- und Freizeitwert. Gleichzeitig kann die Stadt Dorfen ihren Bürgern eine gute infrastrukturelle Ausstattung bieten. Zahlreiche Einkaufsmöglichkeiten und Einrichtungen der ärztlichen Versorgung sind im Stadtgebiet verfügbar und auch leicht ohne Auto zu erreichen. Verschiedene Freizeitaktivitäten, wie z.B. Freibad, Eisstadion, Fitnessstudio, Tennis- und Sportplätze, runden das Alltagsleben ab. Als Schulstadt verfügt Dorfen sowohl über eine Grundschule, als auch über weiterführende Schulen wie Hauptschule und Gymnasium. Die nächste Realschule liegt nicht weit entfernten in Taufkirchen/Vils. Die direkte Lage Dorfens an der Bahnlinie München-Mühldorf verspricht eine gute Bahnanbindung. Mit dem Zug ist die Landeshauptstadt München in etwa 35 Minuten zu erreichen und das ganz ohne Parkplatzprobleme. Diesen Vorteil nutzen bereits zahlreiche Dorfener Pendler. Des Weiteren ermöglicht die A94 das Erreichen Münchens Stadtmitte in nur 35 Minuten. Mühldorf ist in nur 25 Autominuten zu erreichen.







