Sankt Wolfgang – Grünbacher Ring
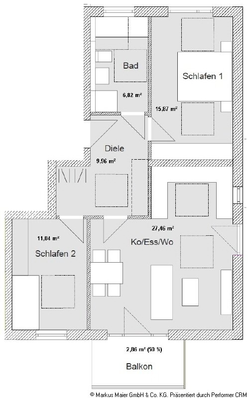
Beim Betreten der 3-Zimmer-Wohnung befinden Sie sich in der Diele, die reichlich Platz für eine Garderobe oder einen Schuhschrank bietet. Von hier aus haben Sie Zugang zu allen Räumen: Bad, Schlafzimmer, Kinderzimmer und den Wohn- und Essbereich. Alle Räume sind schön hell, da jeder mindestens ein Fenster besitzt.
Das Bad enthält zusätzlich zur Badewanne, WC und Waschbecken noch eine separate Dusche. Somit sind alle Wünsche abgedeckt.
Vom fast 30 Quadratmeter großen Wohn- und Essbereich können Sie sich direkt auf den sonnigen Südbalkon begeben.
Alle Räume sind mit einer Fußbodenheizung ausgestattet. Zur Wohnung gehört ein Kellerabteil und ein Tiefgaragenstellplatz ( zzgl. 50€ monatlich).
- Bad mit Dusche und Badewanne
- Balkon nach Süden ausgerichtet
- Kellerabteil
- Tiefgaragenstellplatz (zzgl. 50€ mtl.)
- Aufzug
- EBK gg. Ablöse
Zahlreich und von hohem Wert sind die Kulturdenkmäler in der Gemeinde, die stolzen Kirchen in allen Ortsteilen, die vielen sakralen Denkmäler verstreut über das ganze Land.
Im Ort befinden sich ein Metzger, Bäcker und ein Supermarkt.
St. Wolfgang bietet im Ärztebereich einen Allgemeinarzt, eine Logopädie, einen Zahnarzt, einen Tierarzt sowie eine Apotheke.
Energiekennwert: 53,55 kWh/(m²*a)
Befeuerung/Energieträger: Pelletheizung
Energieausweistyp: Bedarfsausweis
Heizungsart: Zentralheizung
Energieeffizienzklasse: B
Für die Kleinen bietet St. Wolfgang eine Kinderkrippe für Kinder bis 3 Jahre. Einen gemeindlichen Kindergarten gibt es in Armstorf und ein Kinderhaus in St. Wolfgang.
Eine Grundschule bis Jahrgangsstufe 4 ist im Ort vorhanden. Weiterführende Schulen wie Mittelschule, Realschule und Gymnsasium sind in Dorfen Isen, TaufkirchenVils, Erding, Haag, Gars und Wasserburg.
Berufsschulen gibt es in Mühldorf, Erding und Wasserburg.
Schön geschnittene Wohnung mit Aufzug in ruhiger Lage

Wohnungstyp
Etagenwohnung
Wohnfläche
74,01 m2
Zimmer
3
Schlafzimmer
2
Badezimmer
1
Garage / Stellplatz
Tiefgarage
Kosten
Anzahl Garage / Stellplatz
1.00
Kaution
2 625 €
Bausubstanz & Energieausweis
Baujahr
2017
Heizungsart
Zentralheizung
Wesentliche Energieträger
Pelletheizung
Energie-Ausweis
Endenergiebedarf
53,6 kWh/(m2*a)
Energieeffizienzklasse
B
0
25
50
75
100
125
150
175
200
225
>250
Objektbeschreibung
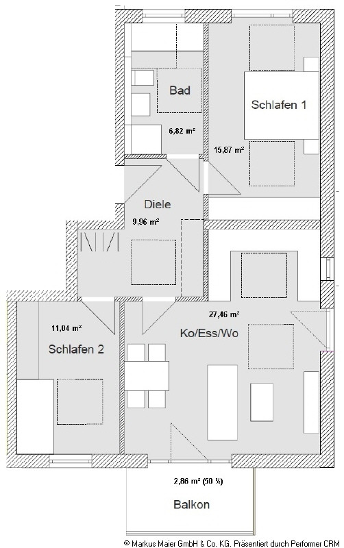
In dieser praktisch gelegenen Wohnanlage sind 14 Wohnungen auf 4 Etagen untergebracht. Ein Aufzug ist vorhanden.Beim Betreten der 3-Zimmer-Wohnung befinden Sie sich in der Diele, die reichlich Platz für eine Garderobe oder einen Schuhschrank bietet. Von hier aus haben Sie Zugang zu allen Räumen: Bad, Schlafzimmer, Kinderzimmer und den Wohn- und Essbereich. Alle Räume sind schön hell, da jeder mindestens ein Fenster besitzt.
Das Bad enthält zusätzlich zur Badewanne, WC und Waschbecken noch eine separate Dusche. Somit sind alle Wünsche abgedeckt.
Vom fast 30 Quadratmeter großen Wohn- und Essbereich können Sie sich direkt auf den sonnigen Südbalkon begeben.
Alle Räume sind mit einer Fußbodenheizung ausgestattet. Zur Wohnung gehört ein Kellerabteil und ein Tiefgaragenstellplatz ( zzgl. 50€ monatlich).
Ausstattung
- Bad mit Fenster- Bad mit Dusche und Badewanne
- Balkon nach Süden ausgerichtet
- Kellerabteil
- Tiefgaragenstellplatz (zzgl. 50€ mtl.)
- Aufzug
- EBK gg. Ablöse
Grundriss

Lage
Die Ortschaft Sankt Wolfgang mit mehr als 5000 Einwohnern liegt im Tal der Goldach etwa 27 km südöstlich der Kreisstadt Erding, 40 km südlich von Landshut, 23 km nördlich von Wasserburg am Inn und 48 km östlich der Landeshauptstadt München. Sankt Wolfgang liegt etwa 8 km südlich von Dorfen mit Bahnanbindung direkt in die Landeshauptstadt München. So ist der Bahnhof Markt Schwaben in ca. 20 Minuten erreichbar. Der Autobahnanschluss über die A94 ermöglicht die Anbindung an den Autobahnring München Ost. Die Regionalbusse verkehren in alle Richtungen.Zahlreich und von hohem Wert sind die Kulturdenkmäler in der Gemeinde, die stolzen Kirchen in allen Ortsteilen, die vielen sakralen Denkmäler verstreut über das ganze Land.
Im Ort befinden sich ein Metzger, Bäcker und ein Supermarkt.
St. Wolfgang bietet im Ärztebereich einen Allgemeinarzt, eine Logopädie, einen Zahnarzt, einen Tierarzt sowie eine Apotheke.
Sonstige Angaben
Baujahr: 2017Energiekennwert: 53,55 kWh/(m²*a)
Befeuerung/Energieträger: Pelletheizung
Energieausweistyp: Bedarfsausweis
Heizungsart: Zentralheizung
Energieeffizienzklasse: B
Für die Kleinen bietet St. Wolfgang eine Kinderkrippe für Kinder bis 3 Jahre. Einen gemeindlichen Kindergarten gibt es in Armstorf und ein Kinderhaus in St. Wolfgang.
Eine Grundschule bis Jahrgangsstufe 4 ist im Ort vorhanden. Weiterführende Schulen wie Mittelschule, Realschule und Gymnsasium sind in Dorfen Isen, TaufkirchenVils, Erding, Haag, Gars und Wasserburg.
Berufsschulen gibt es in Mühldorf, Erding und Wasserburg.









